CASAS EN FORMA DE L, Planos
Las casas en forma de L ofrecen una serie de ventajas que las hacen especialmente atractivas para una amplia gama de propietarios. Ofrecen soluciones prácticas para maximizar el uso del espacio disponible y la mejora de la privacidad y la integración con el entorno.
Este diseño particular permite una variedad de opciones creativas para la disposición de espacios, zonas de jardín, y áreas de privacidad mejorada.
Uso estratégico del terreno con una Casa en Forma de L
Uno de los principales beneficios de las casas en forma de L es la capacidad de adaptarse a diferentes tamaños y formas de terrenos. Esta configuración permite utilizar eficientemente terrenos irregulares o en esquina.
Al diseñar la casa, se puede orientar uno de los brazos de la "L" para que se extienda hacia el área más amplia o más aprovechable del terreno, maximizando así el espacio utilizable tanto interior como exteriormente.
Zonificación funcional
La forma en L naturalmente divide el espacio en zonas que pueden destinarse a diferentes usos. Por ejemplo, un ala puede ser dedicada a las áreas de día como la cocina, el comedor y la sala de estar, mientras que el otro ala puede concentrar las habitaciones y áreas privadas.
Esta separación física es ideal para mantener la privacidad dentro del hogar, especialmente cuando se tienen invitados o se realizan actividades ruidosas que no deben perturbar la paz de la zona de descanso.
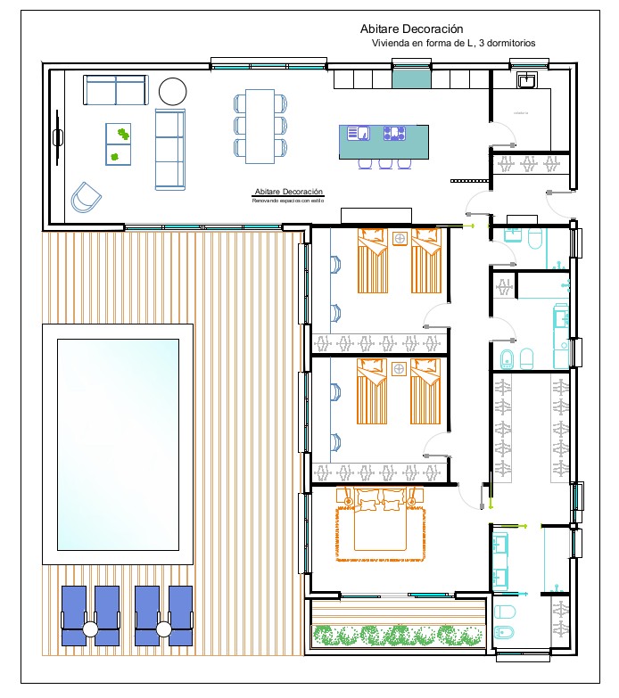
Planos de casas en l con 3 dormitorios
Vemos a continuación los planos de una vivienda para unos clientes que disponen de una parcela con superficie de 1.100 m² y que debe incluir como listado de necesidades:
- Un diseño para maximizar los espacios de la vivienda
- Recibidor
- Cocina salón comedor en espacio diáfano
- 3 dormitorios
- El dormitorio principal con vestidor y baño
- 1 baño completo
- 1 baño de cortesía con ducha
- Zona de coladuría
- Integrar una piscina

Casas en forma de l con piscina
El diseño es una casa en forma de L que incluye las peticiones solicitadas. La distribución en forma de L permite la creación de zonas comunes amplias y diáfanas, ideales para disfrutar en familia o recibir invitados, combinando con facilidad la privacidad de las áreas individuales.
La disposición en L de estas casas favorece la inclusión de grandes ventanales, que permiten disfrutar de vistas panorámicas desde cualquier parte de la vivienda. La entrada de luz natural es un elemento clave en el diseño, creando espacios luminosos y conectados con el entorno exterior.
Las líneas rectas y la distribución permiten una óptima conexión con el exterior, creando espacios interiores de gran atractivo visual y practicidad para el día a día.

Casas en L planos
Maximizar el espacio en una casa en forma de L no solo es posible, sino que puede transformar completamente la funcionalidad y la vivencia en el hogar. Con una planificación cuidadosa y un diseño inteligente, las casas en forma de L se presentan como una opción versátil y llena de potencial para cualquier familia, adaptándose a sus necesidades específicas y al entorno en que se encuentren.
Vemos a continuación otro trabajo de distribución de una vivienda en forma de L. Se trata de una edificación de 200 m2 en una parcela de 500 m² donde se desea crear una planificación tal que se abra todo el interior de la casa a una zona ajardinada con piscina.
La distribución en forma de L permite la creación de espacios interiores altamente funcionales. Con líneas rectas y claras, se pueden diseñar áreas que se integren de manera fluida y armoniosa, optimizando el uso del espacio y garantizando la comodidad en cada ambiente de la vivienda.
Las necesidades solicitadas por los clientes son:
- Separación entre zona de día y zona de noche,
- 2 dormitorios con 2 camas
- Baño en cada dormitorio
- Armarios empotrados en dormitorios
- Baño de cortesía
- Dormitorio principal en suite, con vestidor y baño,
- Salón comedor,
- Cocina independiente con apertura al comedor
- Coladuría
- Baño en jardín

Como distribuir una casa en forma de l
Esta vivienda que vemos a continuación es un piso de 110 m² que dispone de una terraza de 16 m². Los clientes solicitan una distribución de la vivienda que disponga de los siguientes espacios:
- Salón cocina comedor en espacio abierto
- Opción de salón comedor con cocina independiente
- Dormitorio principal con baño y vestidor
- 2 Dormitorios
- 1 baño





Ventajas de un Plano Personalizado
Un plano personalizado garantiza que tu hogar refleje tu estilo de vida, preferencias y expectativas. Un buen plano de distribución puede transformar tu hogar, haciéndolo más cómodo, funcional y atractivo.
Invertir tiempo y esfuerzo en diseñar un buen plano es esencial para maximizar el uso del espacio y asegurar que tu hogar sea lo más práctico y cómodo posible.
¿Necesitas una nueva planificación de los espacios de tu casa? CONTACTA CON NOSOTROS
Visita nuestra Tienda de Decoración Online con las últimas tendencias para el hogar


Gracias por visitarnos,
Un saludo,

Texto y planos, Abitare Decoración